Project: Brickworks
Client: The Wormald Companies & Greenberg Gibbons
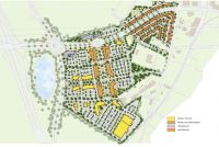
The development of a 65 acre former brick yard into a mixed-use community, the Brickworks masterplan includes retail, restaurants, hotels and residential properties. The plan combines uses to create a walk-able core as well as major retail areas, capitalizing on the site's interstate road frontage.
Related
