Project: Morgan State University Ballfields/Concession Stands
Client: Morgan State University
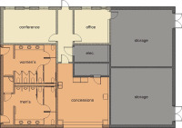
A new NCAA Women’s Softball field and field house will be designed for Morgan State University. The field house will include locker rooms, a concession stand, a training room, and restrooms for the public. The stadium will hold 210 fans and have an observation deck for coaches and press. All facilities will meet NCAA Division I requirements
