Project: Howard B. Owens Science Center
Client: Prince George's County Public Schools
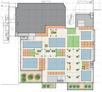
Located in Lanham, Maryland, the Howard B. Owens Science Center is a dedicated STEM education center operated by Prince George’s County Public Schools and serving pre-K through 12th grade students. In partnership with Nichols Contracting, the renovated facility reimagines the learning environment with vibrant colors, textured flooring, atomic-pattern wall panels, and large murals that spark curiosity and encourage exploration.
The renovation also features an outdoor classroom with a pollinator garden, composting and weather stations, a Zen garden, and a rain garden, offering hands-on learning in sustainability and environmental science. At the heart of the center is a state-of-the-art planetarium, where cutting-edge technology and flexible seating create immersive experiences in astronomy, planetary systems, and the natural world.
